| |
 |
| |
Pratham Apartments , Sec - 10A, Bawal |
|
|
| Overview
PRATHAM APARTMENTS is the First Residential Gated Community in Bawal, this uniquely conceptualized project is being developed to bring plethora of lifestyle and a real panorama of refined living to the people of Bawal in Haryana. Built to match one's aspiration & to address varied needs of people in the area, PRATHAM APARTMENTS has a judicious mix of 1, 2 & 3 BHK units, where every window opens to beautifully designed landscaped gardens lining broad avenues. Spread over an area of 9.60 acres, PRATHAM APARTMENTS are being developed first time as a planned gated community in the region of BAWAL. |
Floor Plans
 |
|
 |
|
 |
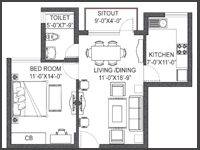
Type : 1 BHK
Super Area : 818 Sq.ft. |
|
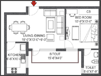
Type : 1 BHK
Super Area : 824 Sq.ft. |
|
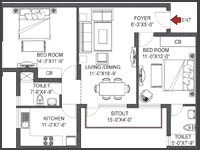
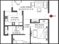
Type : 2 BHK
Super Area : 1125 Sq.ft. |
| |
|
|
|
|
 |
|
 |
|
 |
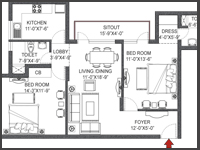
Type : 2 BHK
Super Area : 1255 Sq.ft. |
|
Type : 2 BHK
Super Area : 1344 Sq.ft. |
|
Type : 3 BHK
Super Area : 1605 Sq.ft. |
| |
|
|
|
|
 |
|
|
|
|
Type : 3 BHK
Super Area : 1570 Sq.ft. |
|
|
|
|
|
© 2013 Home Life - Real Estate Consultants India - Property in India - All Rights Reserved.